PROPERTY SUMMARY
ADDRESS: 4645 Mission Street, San Francisco, CA 94112
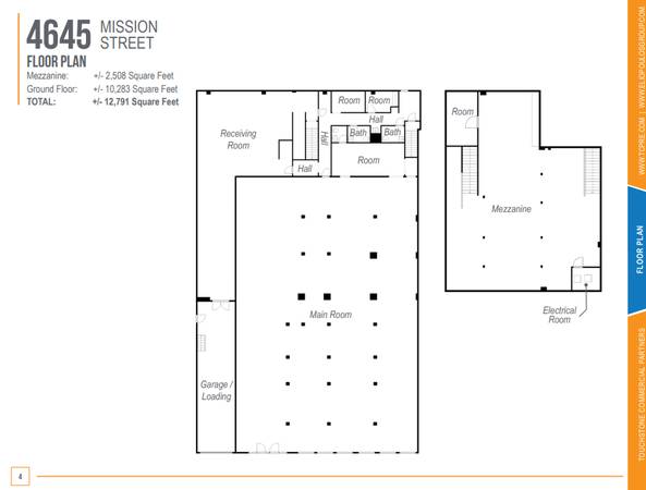
AVAILABLE SPACE
Mezzanine: +/- 10,283 Square Feet
Ground Floor: +/- 2,508 Square Feet
TOTAL: +/- 12,791 Square Feet
RENTAL RATE: Call Agent For Pricing
AVAILABLE: Immediately
BUILDING ATTRIBUTES
+ Significant Frontage
+ Large Signage Opportunity
+ Multiple Restrooms
+ Garage With Loading Dock
+ High Visibility Space From Ocean Avenue And Mission Street
Located in the Mission Terrace neighborhood
To view the flyer, please copy link into browser: https://48f2ce8c-67c6-4877-87af-4ec1ebd83ec7.usrfiles.com/ugd/48f2ce_fb862c5bc0be4c9680861c8747674012.pdf
CONTACT INFORMATION
Jaron Eliopoulos: 415-608-6336
Cameron Tu: 510-919-8193
keywords: mission street, signage, retail, commercial, loading dock